三宮の貸しビル I・N東洋ビル【フロア間取り・立面図】|東洋産業株式会社
三宮の貸しビル【I・N東洋ビル】
|
クリニックにも対応【東洋ビル】
|
オフィス物件へのアクセス
貸しテナントの東洋産業株式会社トップページ
>
神戸のオフィス物件
>
三宮の貸しビル I・N東洋ビル【フロア間取り・立面図】
フロア間取り
地下1階
1階
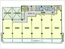
2〜4階
6階
8階
9階
立面図
東立面図
南立面図
西立面図
兵庫県神戸市中央区八幡通3丁目2番5号 I・N東洋ビル9階 Copyright(C) Toyo Sangyo Co. Ltd All Reserved.