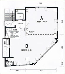
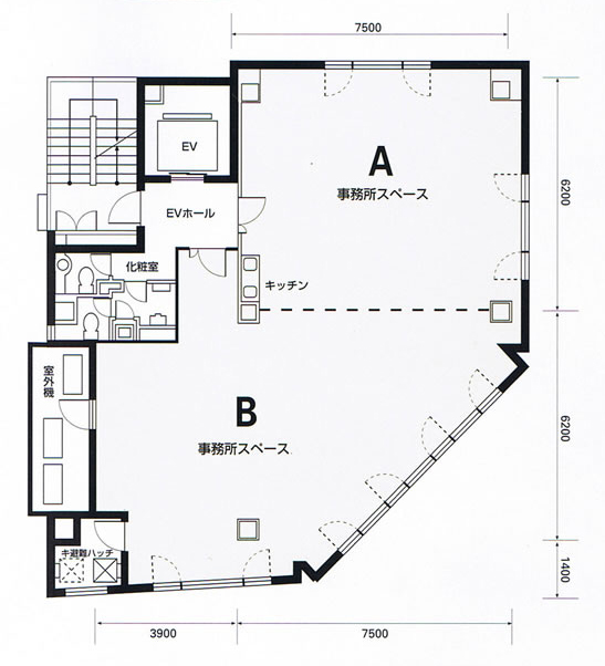
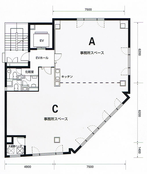
フロア間取り
火災により多くの病院・被災したこの地区では、居間、地域の医療環境の充実が強く望まれています。東洋ビルは、遠隔診療などの可能性も広げる、光ファイバー通信システムを導入。クリニック集中ビルとしてのメリットを幅広く活かすことが出来ます。
●1フロア1医療で開業できます。
●医療用として必要な自家発電機能対応
●ガスによる給油に対応
●医療用として必要な自家発電機能対応
●ガスによる給油に対応
神戸ビジネスの中心地という恵まれた立地に加え、高度情報社会に対応する光ファイバーなどの先進設備を導入。多量の情報通信可能なインテリジェントビルの名にふさわしいオフィス環境がビジネスチャンスをさらに大きく拡げます。
立面図

断面図
兵庫県神戸市中央区八幡通3丁目2番5号 I・N東洋ビル9階 Copyright(C) Toyo Sangyo Co. Ltd All Reserved.


